Les habitations Niamey 2000, par atelier masōmī
Un exemple d’architecture contemporaine sahélienne
On parle peu d’architecture contemporaine au Sahel. Heureusement, les habitations Niamey 2000, conçues par atelier masōmī, rappellent qu’il est important de s’y intéresser.
Par exemple, à Niamey, capitale du Niger, une crise du logement sans précédent abat son plein depuis quelques années. Principalement composée de maisons de plain-pied, cette capitale africaine fait face à des problèmes d’étalement urbain et de spéculation immobilière à résoudre d’urgence. Une des solutions consiste à densifier les zones résidentielles, afin de limiter l’emprise au sol de chaque bâtiment tout en augmentant le nombre de logements disponibles.
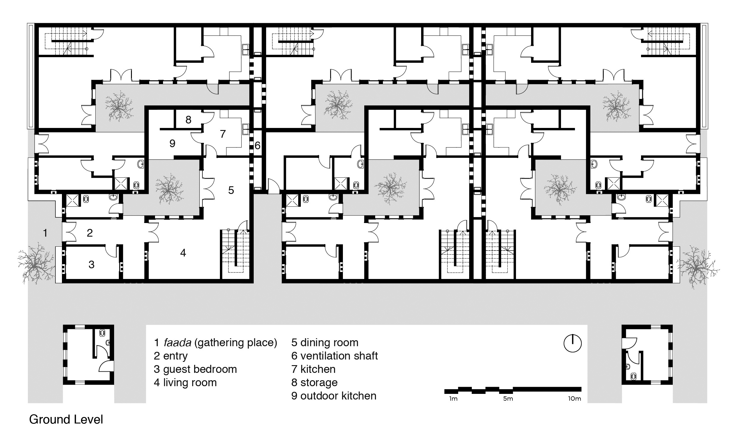
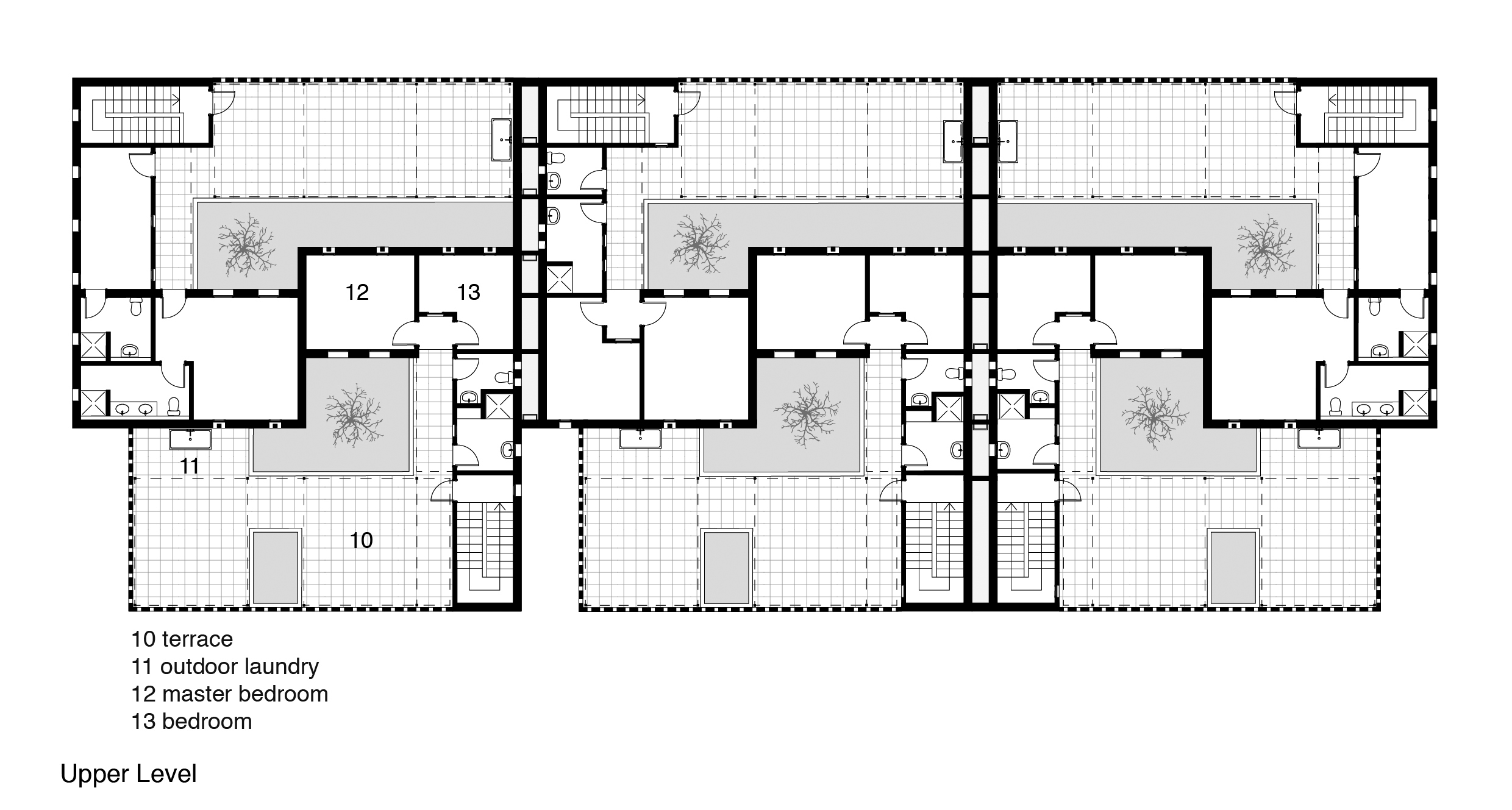
C’est dans cette optique que les architectes de l’agence atelier masōmī, dirigés par la Nigérienne Mariam Kamara, ont conçu et édifié en 2015 les habitations Niamey 2000. D’une surface totale de 1700 m², il s’agit de six confortables maisons à étage entrelacées. Ces habitations servent de modèle de densification résidentielle convenant aux attentes et aux contraintes locales.
Pour limiter l’empreinte écologique du projet, le béton a été évité. À sa place, on a préféré la terre crue, ressource locale, abondante et plus abordable. De plus, les qualités de ce matériau en matière de confort thermique sont amplifiées par des techniques architecturales de ventilation passive. Les occupants des habitations Niamey 2000 sont de ce fait naturellement protégés de la chaleur du Niger. Pas besoin d’installer de climatiseur !
Vu la hauteur relativement faible de ces habitations, pourquoi atelier masōmī n’a-t-il pas préféré concevoir des immeubles ? D’après cette agence, la réponse est simple : les immeubles d’appartements ne sont pas appropriés à la culture et aux usages locaux. Par conséquent, atelier masōmī a préféré revisiter la maison de plain-pied traditionnelle en lui ajoutant seulement un étage – ou deux.
Ce type de bâtiment à étage reste une véritable nouveauté à Niamey, même s’il s’inspire des constructions traditionnelles datant d’avant la colonisation. On pouvait les trouver à Tombouctou (Mali), Kano (Nigeria) ou encore Zinder (Niger), anciens centres urbains très denses. Ces maisons, de formes organiques et entrecroisées, avaient souvent deux ou trois étages. De plus, chacune de ces maisons offraient à leurs habitants intimité et confort, malgré leur proximité entre elles.

Une agence responsable
atelier masōmī – écrit entièrement en minuscules – est une agence nigérienne fondée en 2014 par l’architecte Mariam Kamara. Cette architecte, consciente des ravages de l’architecture sur l’environnement, cherche à améliorer son impact sur la vie des gens. C’est pour cela qu’elle affirme qu’il ne faut pas imposer ses idées en tant qu’architecte. Au contraire, l’architecte doit, selon elle, assumer ses responsabilités pour servir la majorité et non une poignée de privilégié·es. Son travail, pour elle, c’est : « en premier lieu, ne pas faire de mal, et, ensuite, qu’est-ce qu’on peut faire de mieux ? »
Ainsi, comme ZAV, les architectes d’atelier masōmī visent à améliorer le bien-être de la population. Leur démarche se base sur une recherche extensive du lieu de construction, afin de bien connaître son contexte et son histoire. Et pour que le résultat soit en accord avec la culture locale, le dialogue avec les riverains prend une place considérable.


Une réflexion sur la dignité des habitants dans un contexte post-colonial
Les principales qualités des habitations Niamey 2000 résident dans la garantie de l’intimité et de la dignité de ses occupants. Par ailleurs, élever, honorer et apporter une meilleure qualité de vie, telles sont les valeurs d’atelier masōmī. C’est ce qui explique la réussite de ce projet, récompensé deux fois. Ainsi, il a reçu un American Institute of Architects Seattle Award et un Architect Magazine’s 2017 R+D Award for innovation.
Par ce projet, atelier masōmī prouve qu’il est possible de trouver des solutions architecturales vernaculaires en accord avec les contraintes du XXIème siècle. Les propositions de cette agence, très différentes des pratiques occidentales pour densifier le tissu urbain, rappellent qu’il faut bien connaître son histoire pré-coloniale. Il est aussi nécessaire d’être à l’écoute de la population locale. Par ce travail, on obtient d’excellentes réalisations de design et d’architecture s’accordant parfaitement au contexte post-colonial des pays anciennement colonisés.
Cette réflexion peut s’appliquer au Maroc, lui aussi anciennement colonisé. Une meilleure sensibilisation aux différentes architectures vernaculaires peut mener à l’amélioration des conditions de vie des Marocains.
Enfin, les architectes de l’étranger voulant travailler dans un pays anciennement colonisé doivent se sensibiliser à ce contexte post-colonial. De cette manière, nous pouvons les inciter à suivre une démarche similaire à celle d’atelier masōmī. Cela servirait mieux la population locale et générerait un impact positif sur leur qualité de vie et leur dignité.
Pour découvrir atelier masōmī, cliquez ici.
