Vashon cabin
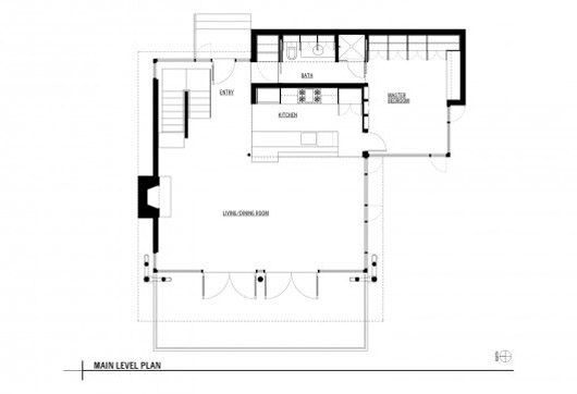
Vashon cabin est un projet de 170 m² conçu par l’agence Vandeventer + Carlander Architects qui est situé à Vashon Island, dans l’Etat de Washington. Les architectes devaient reprendre un bâtiment existant et le remodeler avec la contrainte de ne pas pouvoir agrandir l’espace au sol. Le rendu donne une zone habitable plus que raisonnable, et une vue magnifique.






