Rabi’s Artist Studio – Studio BO // Omar Benmoussa
À la demande du peintre marocain Abdelkebir Rabi’, ce projet d’aménagement d’intérieur consiste à concevoir l’extension d’un atelier de travail. Imaginé par l’architecte marocain Omar Benmoussa, le Rabi’s Artist Studio constitue une réponse spatiale à la fois riche et neutre – polyvalente et résolument personnelle.
Le projet prend place dans un emplacement convoité du vieux Casablanca à proximité du Parc de la Ligue Arabe et de l’emblématique église du Sacré-Cœur. À l’image d’un espace muséal, le studio se déploie à la manière d’un canevas – ouvrant la voie à l’expression de la pensée artistique.
©Alessio Mei
«La meilleure façon d’exprimer la lumière, c’est de parler de l’ombre. L’ombre n’existe que par la lumière et la lumière n’existe que par elle-même»
ABDELKEBIR RABI’
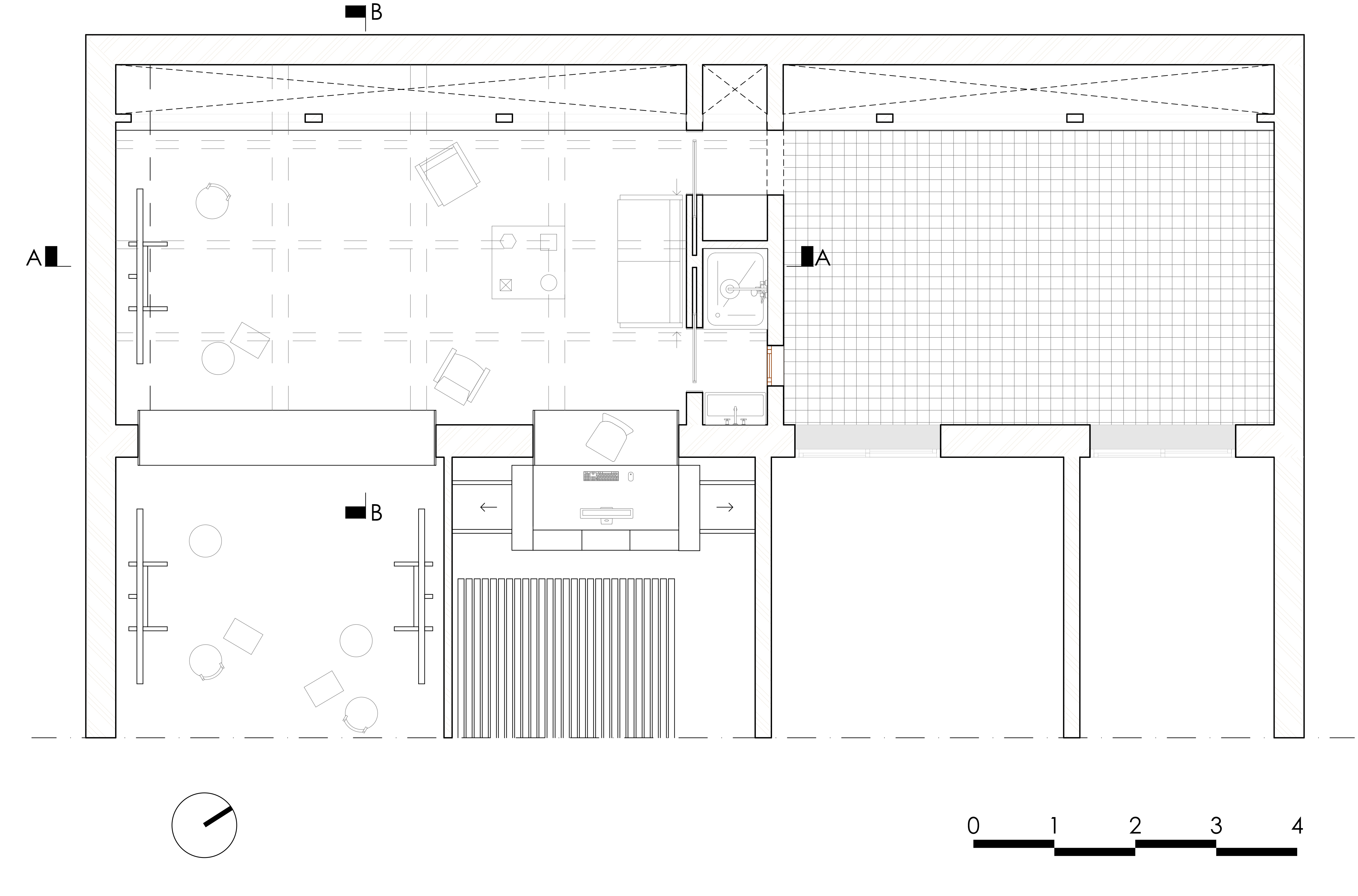
Le Rabi’s Artist Studio consistait dans un premier temps à la réhabilitation d’une terrasse technique esseulée. La proposition architecturale étant d’occulter celle-ci avec un plafond vitré de forme concave. La verrière a été assemblée par le biais d’une armature en métal thermolaqué afin d’en préserver l’intégrité. Cette dernière a été complétée par des panneaux en verre trempé à chaud dans le but d’en augmenter la résistance et la solidité. En termes de programmation, l’atelier comporte un espace de travail, un espace bureau, un salon, un espace de rangement et une salle de bain.
©Alessio Mei
La résultante spatiale devient le réceptacle d’une lumière diffuse et confortable, adaptée à l’usage auquel elle se prête. La matérialité du projet constitue le prolongement d’une réflexion architecturale impavide et dénuée de superflu. Les sols ont été revêtus d’un parquet en chêne aux teintes claires. En outre, les espaces de rangement sont accentués par le biais d’un marbre granuleux et poreux. Les pièces de mobilier, quant à elles, ont été sélectionnées et disposées avec soin. À l’image d’une œuvre de Rabi’s, ces dernières sont à la fois structurées de part leurs coloris, textiles et configurations, mais également subjuguées par le blanc originel de la pièce.
Ainsi, dans une vision dichotomique, le studio devient le temps d’un instant une expérience spirituelle frénétique et intemporelle. Ponctuée au rythme des coups de pinceaux drus de l’artiste, l’espace invite à la contemplation et au recueillement.
©Alessio Mei
GALERIE PHOTOS DU PROJET
Plan
Coupe AA
Coupe BB


