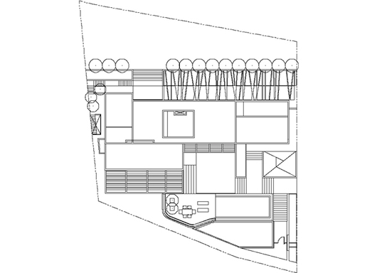
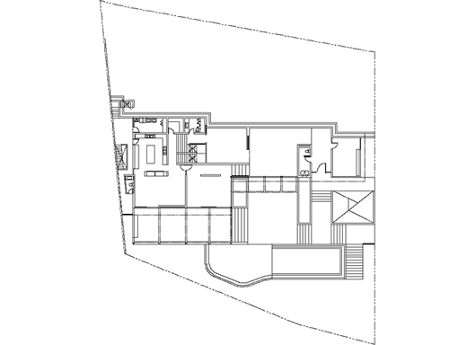
CG House
La CG House et une résidence conçue par le cabinet d’architectes GLR Arquitectos. Cette maison de style, avec une longue structure en bois et béton qui met l’accent sur la relaxation et le divertissement repose sur un site de 1603 m² à côté de la montagne Sierra Madre. Elle offre une vue spectaculaire de la ville de Monterrey au Mexique. Je vous laisse découvrir les images dans la suite.













