Brain Fit
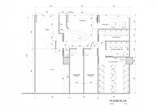
Brain Fit, conçu par Nutthawut Piriyaprakob de NPDA Studio basé en Thaïlande, est un lieu d’apprentissage spécialement conçu pour les enfants, pour améliorer le fonctionnement du cerveau, l’imagination et la coordination. L’espace est composé de 4 zones, (la réception, la salle de gymnastique, la salle d’examen, et la salle d’examen sur ordinateur). Chaque zone est conçue comme une imitation des cellules du cerveau, des vaisseaux sanguins et des membranes du corps afin d’illustrer le sens des activités d’apprentissage réalisées.

















