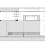
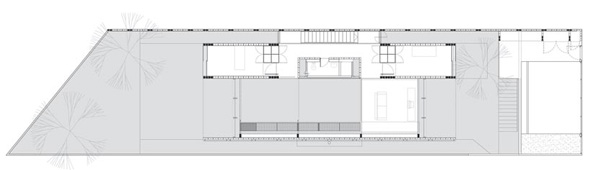
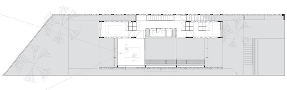
Querosene House
Située à Sao Paulo, au Brésil la Querosene House est une maison conçue par l’architecte local Alvaro Puntoni. Composée de trois étages cette maison abrite, entre autres, une bibliothèque contenant 7500 livres. La structure du volume est principalement construite avec des murs en maçonnerie et en béton armé. Les planchers sont en béton et en pierre blanche portugaise.












