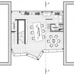
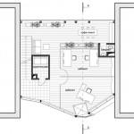
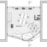
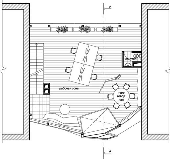
Parasite Office
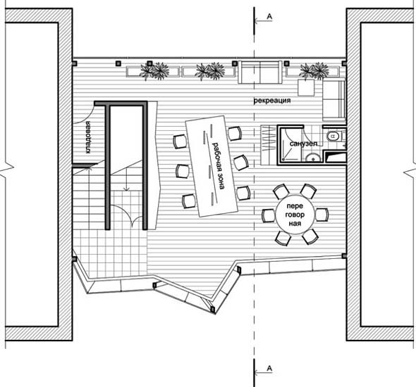
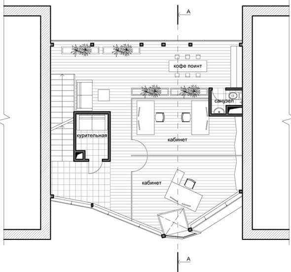
La capitale de la Russie affiche fièrement un projet étonnant d’architecture qui utilise un site urbain étroit comme base pour un nouveau type de bureau. Le Parasite Office conçu par zaBor architects s’élève entre deux bâtiments et offre ainsi une alternative pour la création de bureaux partout dans le monde. Le bureau de 230 mètres carrés est niché entre deux immeubles d’habitation, occupant un espace espace qui était totalement inutilisé.
Les passages entre les bâtiments de Moscou sont parfaits pour des constructions innovantes telles que le Parasite Office, créant de nouveaux aménagements urbains liés à des espaces de travail. Le premier bureau construit comme cela sera le siège de l’agence zaBor.
Un volume de trois étages avec une surface de toiture accessible sera le volume principal du bureau. Il sera divisé par des panneaux de plancher modulaire. Le polycarbonate cellulaires utilisé pour la façade polygonale du volume assurera la beauté architecturale du projet, tandis que la partie tournée vers l’autre côté est plate et entièrement vitrée.













